4 OXFORD Ottawa, Ontario K1Y2R7, Ottawa , K1Y2R7
Listing ID: X12585258
Share
$599,900
Price
Data last updated: December 15, 2025 at 01:03am
Quick Access
Photos
Video
Map

Property Description

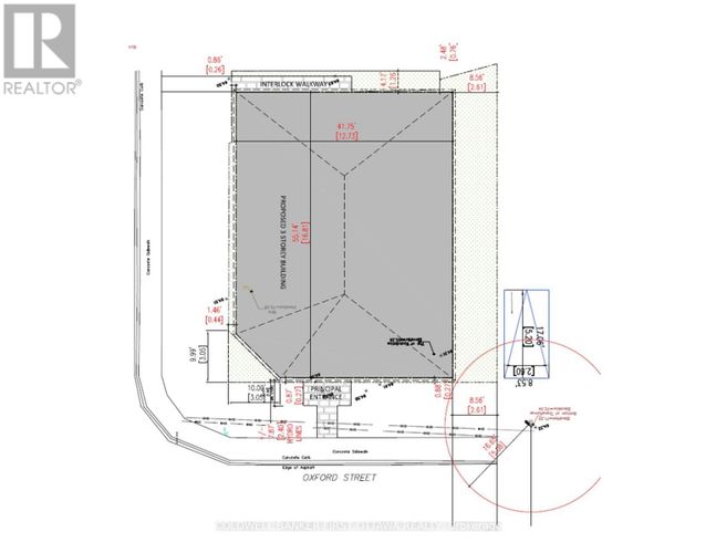
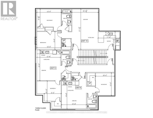
FABULOUS MULTI UNIT DEVELOPMENT OPPORTUNITY IN PRIME HINTONBURG! Corner lot with R4UB zoning steps to LRT, Wellington Village and Westboro. Don't let this small lot size fool you. Conceptual drawings in place for 10 unit building (6 x 2 bedroom, 4 X 1 bedroom) with 2 ground floor accessible units. Vendor is a reputable builder and can also build out for you. (id:26452)

Other located at 4 OXFORD Ottawa, Ontario K1Y2R7. 4 OXFORD Ottawa, Ontario K1Y2R7 is in the 4202 - Hintonburg neighborhood. Pineview, The Glebe, and Findlay Creek are nearby neighbourhoods.
Show More keyboard_arrow_down


Agent Contact: NIRAJ SINGHAL Phone: +16135135658
Listing Courtesy of: COLDWELL BANKER FIRST OTTAWA REALTY
Source: crea , MLS#: X12585258

close
NS
NIRAJ SINGHAL
(613) 513-5658

Here to help with your Real Estate inquiries

NS
NIRAJ SINGHAL
(613) 513-5658
chat
Message
By sharing this listing, you have agreed with roomvu's terms and conditions of usage
$3,703.37
Monthly
$878,400
Total Mortgage
$219,600
Down Payment