415 2978 BURLINGTON DRIVE, Coquitlam BC V3B 7S6, Coquitlam , V3B 7S6
Listing ID: R3072908
Share
$781,117
Price
2
Bed
2
Bath
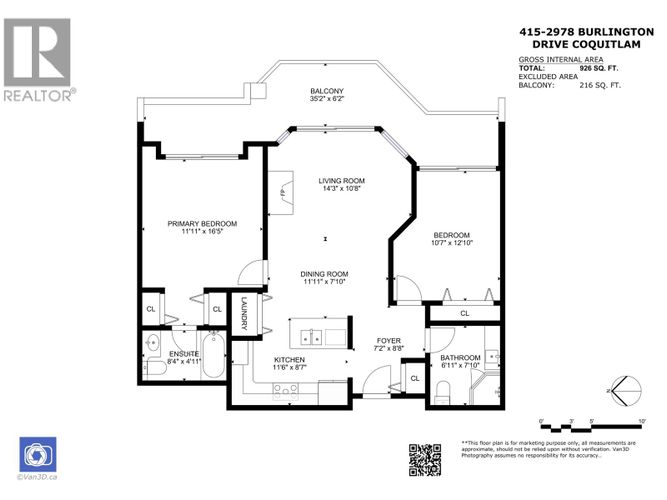
926
Sq. Ft.
Built: 1993
Data last updated: December 13, 2025 at 10:17am
Quick Access
Photos
Video
Map

Property Description

Top floor at “The Burlington” where convenience meets lifestyle.You’re not just investing in a home you’re investing in effortless living with transit, amenities, and community all at your doorstep.With three SkyTrain stations within a short 10-minute walk, commuting is seamless and stress-free,Perfect for families.This home is surrounded by excellent schools, all within a 15-minute radius:Glen Elementary,Maple Creek Middle School, Pinetree Secondary.We invite you to visit both day and night to truly appreciate this exceptional location and to experience the breathtaking Coquitlam city lights for yourself. Kitchen upgraded with NEW Cabinets & Countertop. Bathroom New Countertop, Cabinets & Lighting. Textured Ceiling, Balcony access from every room.Same owner last 23 years, Welcome Home!

Other located at 415 2978 BURLINGTON DRIVE, Coquitlam BC V3B 7S6. It has 2 beds, 2 bathrooms, and is 926 square feet. The property was built in 1993. 415 2978 BURLINGTON DRIVE, Coquitlam BC V3B 7S6 is in the Coquitlam neighborhood.
Show More keyboard_arrow_down


Agent Contact: Mark Wang Phone: +16048972383
Listing Courtesy of: eXp Realty (Branch)
Source: rebgv , MLS#: R3072908

close
MW
Mark Wang
(604) 897-2383

Here to help with your Real Estate inquiries

MW
Mark Wang
(604) 897-2383
chat
Message
By sharing this listing, you have agreed with roomvu's terms and conditions of usage
$3,703.37
Monthly
$878,400
Total Mortgage
$219,600
Down Payment